The Schlegel Group

Search Homes

67 Tamalpias AvenueFairfax, CA 94930Price: $345,000

  • Price: $345,000
  • Est. Mortgage of $/month
  • 200 Days on Market
$
$
%
$/month over payments
Federal 30-year interest rate: 6.24% last updated on Nov 13, 2025
* All Figures are estimates. Check with your bank or proposed mortgage company for actual interest rates.
This product uses the FRED® API but is not endorsed or certified by the Federal Reserve Bank of St. Louis.
  • $345,000List Price
  • 0.12Acreage
Listed by Raymond Bakowski of Coldwell Banker Realty

Listing Tools

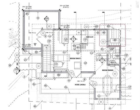
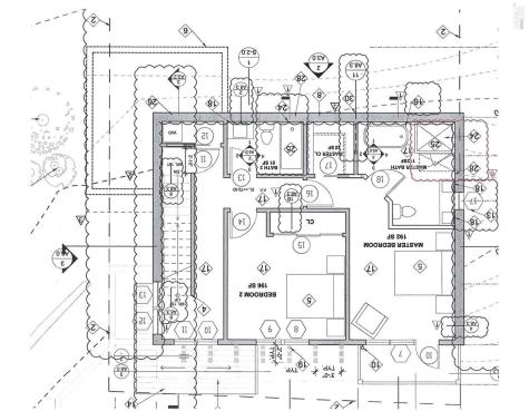
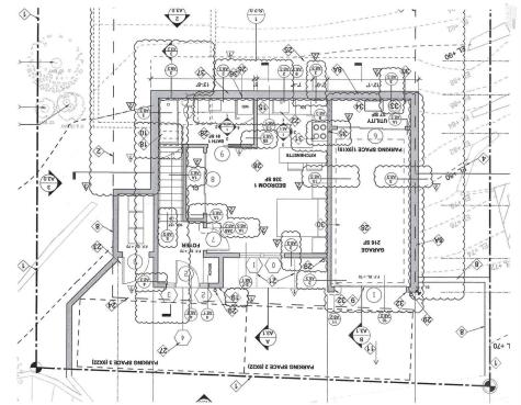
An incredible opportunity to build a brand new 2,200 square foot 3-level home just a few blocks from charming downtown Fairfax. The lot comes with all approved plans and permits from the Town of Fairfax and is ready to build. The house was designed by local architect, Ron Kappe, and it can be either a SFR with 3 bedrooms and 3 baths, or two units with a 500 square foot lower-level self-contained JADU and an upper unit with 2 bedrooms and 2 baths. Included are all architectural and structural plans including Geotech and Engineering reports. With the heavy lifting already done for you come and put down your own roots in Marin's best town!

Property Details of 67 Tamalpias Avenue

Map Location

Driving Directions

Based on information submitted to CA_BAREIS as of November 17, 2025 5:33 AM EST . All data is deemed reliable but is not guaranteed accurate by the MLS. All information should be independently reviewed and verified for accuracy. IDX information is provided exclusively for consumers’ personal, noncommercial use and may not be used for any purpose other than to identify prospective properties consumers may be interested in purchasing.

Hi there! How can we help you?

Contact us using the form below or give us a call.

Send Us A Message:

I agree to receive marketing and customer service calls and text messages from The Schlegel Group. To opt out, you can reply 'stop' at any time or click the unsubscribe link in the emails. Consent is not a condition of purchase. Msg/data rates may apply. Msg frequency varies. Privacy Policy.

Do not fill in this field:

This site is protected by reCAPTCHA and the Google Privacy Policy and Terms of Service apply.

Hi there! How can we help you?

Contact us using the form below or give us a call.

Send Us A Message:

Do not fill in this field:

This site is protected by reCAPTCHA and the Google Privacy Policy and Terms of Service apply.

Hi there! How can we help you?

Contact us using the form below or give us a call.

Send Us A Message:

Do not fill in this field:

This site is protected by reCAPTCHA and the Google Privacy Policy and Terms of Service apply.

Do not fill in this field:

This site is protected by reCAPTCHA and the Google Privacy Policy and Terms of Service apply.

Do not fill in this field:

This site is protected by reCAPTCHA and the Google Privacy Policy and Terms of Service apply.

Do not fill in this field:

This site is protected by reCAPTCHA and the Google Privacy Policy and Terms of Service apply.

$

Do not fill in this field:

This site is protected by reCAPTCHA and the Google Privacy Policy and Terms of Service apply.