The Schlegel Group

Search Homes

21 Branching WayPetaluma, CA 94952Price: $1,400,000

  • Price: $1,400,000
  • Est. Mortgage of $/month
  • 137 Days on Market
$
$
%
$/month over payments
Federal 30-year interest rate: 6.19% last updated on Dec 4, 2025
* All Figures are estimates. Check with your bank or proposed mortgage company for actual interest rates.
This product uses the FRED® API but is not endorsed or certified by the Federal Reserve Bank of St. Louis.
  • $1,400,000List Price
  • 0.95Acreage
Listed by Yvette Preute of Compass

Listing Tools

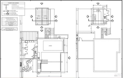
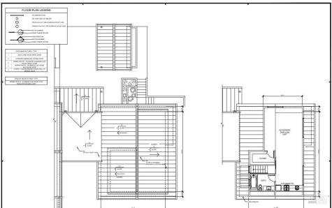
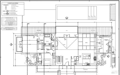
Welcome to the location of your future dream home. This rare .95-acre parcel is construction-ready, featuring utilities and a freshly paved driveway. With approved architect, landscape architect, and engineering plans included, you can start building your dream home without delay. The City of Petaluma Planning (SPAR) has approved all plans, and the next step is to submit your building permit and customize interior plans and finishes. Located less than a mile from downtown Petaluma, this prime lot offers convenient access to vibrant shopping, dining, and recreation, along with award-winning schools nearby. Imagine your ideal residence in this beautiful community, surrounded by the charm of Petaluma and the scenic beauty of Sonoma County. Don't miss this unique opportunity to secure a large parcel ready to build now, and bring your vision to life.

Property Details of 21 Branching Way

Map Location

Driving Directions

Based on information submitted to CA_BAREIS as of December 6, 2025 10:33 PM EST . All data is deemed reliable but is not guaranteed accurate by the MLS. All information should be independently reviewed and verified for accuracy. IDX information is provided exclusively for consumers’ personal, noncommercial use and may not be used for any purpose other than to identify prospective properties consumers may be interested in purchasing.

Hi there! How can we help you?

Contact us using the form below or give us a call.

Send Us A Message:

I agree to receive marketing and customer service calls and text messages from The Schlegel Group. To opt out, you can reply 'stop' at any time or click the unsubscribe link in the emails. Consent is not a condition of purchase. Msg/data rates may apply. Msg frequency varies. Privacy Policy.

Do not fill in this field:

This site is protected by reCAPTCHA and the Google Privacy Policy and Terms of Service apply.

Hi there! How can we help you?

Contact us using the form below or give us a call.

Send Us A Message:

Do not fill in this field:

This site is protected by reCAPTCHA and the Google Privacy Policy and Terms of Service apply.

Hi there! How can we help you?

Contact us using the form below or give us a call.

Send Us A Message:

Do not fill in this field:

This site is protected by reCAPTCHA and the Google Privacy Policy and Terms of Service apply.

Do not fill in this field:

This site is protected by reCAPTCHA and the Google Privacy Policy and Terms of Service apply.

Do not fill in this field:

This site is protected by reCAPTCHA and the Google Privacy Policy and Terms of Service apply.

Do not fill in this field:

This site is protected by reCAPTCHA and the Google Privacy Policy and Terms of Service apply.

$

Do not fill in this field:

This site is protected by reCAPTCHA and the Google Privacy Policy and Terms of Service apply.